
Kesbangpol Sumut Mulyono: Proterksi Dini Jadi Kunci Pemberantasan Narkoba dan Judol di Sumut
MEDAN Pemerintah Provinsi (Pemprov) Sumatera Utara (Sumut) terus berupaya agar provinsi ini keluar dari zona teratas pengguna narkoba di
NewsBaca Juga:
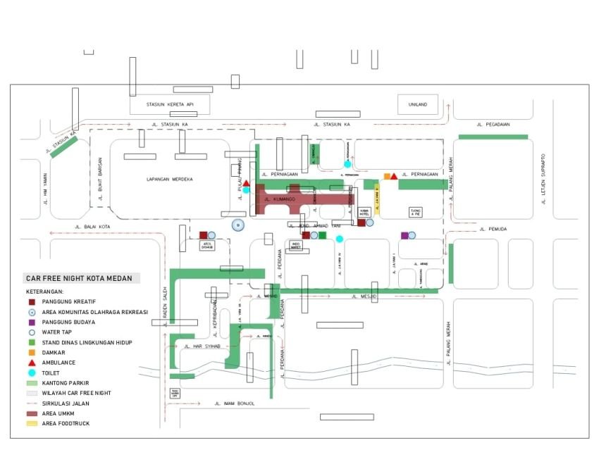
Plt Kadis Perhubungan, Suriono ketika dikonfirmasi, Jumat (27/6/25) menjelaskan pusat kegiatan Car Free Night berada di jalan Jenderal Ahmad Yani, Kesawan. Selain itu Car Free Night juga berlangsung di seputaran kawasan lapangan Merdeka Medan, yakni di jalan Bukit Barisan, Jalan Stasiun dan Jalan Pulau Penang.
"Untuk mendukung kegiatan ini Dishub Kota Medan bekerjasama dengan Polrestabes Medan akan melakukan manajemen rekayasa lalulintas, diantaranya penutupan sejumlah ruas sepert jalan Jendral Ahmad Yani persimpangan jalan Palang Merah, sepanjang jalan Masjid dan jalan Perniagaan. Kemudian penutupan juga dilakukan diseputaran lapangan merdeka jalan Stasiun, jalan Bukit Barisan dan jalan Pulau Penang", jelas Suriono.
Suriono pun menghimbau kepada masyarakat yang akan melintas kawasan tersebut untuk mengambil jalan alternatif. Nantinya akan ada juga petugas Dishub yang akan mengarahkan di jalan yang akan ditutup tersebut.
"Bagi masyarakat pengguna kereta api masih diperkenankan untuk melintas jalan di depan stasiun kereta api atau jalan layang overpass. Sehingga penutupan jalan tidak menganggu aktifitas di stasiun kereta api ", ujar Suriono.
Ditambahkan Suriono, mekanisme rekayasa lalulintas dengan penutupan ruas jalan akan dimulai pukul 17:00 WIB sampai pukul 23:59 Wib. "Kami berharap masyarakat dapat mengetahui rekayasa lalulintas tersebut dan bagi pengendara agar dapat tertib dalam mengikuti arahan yang ada.
Suriono juga meminta maaf kepada masyarakat terkait penutupan atau rekayasa Jalan yang terjadi guna mensukseskan acara Car Free Night ttersebut.
"Nanti petugas akan disebar di setiap simpang untuk membantu pengendara," tutupnya. (Rel)
MEDAN Pemerintah Provinsi (Pemprov) Sumatera Utara (Sumut) terus berupaya agar provinsi ini keluar dari zona teratas pengguna narkoba di
NewsSERDANGBEDAGAI Bunda Pendidikan Anak Usia Dini (PAUD) Provinsi Sumatera Utara (Sumut) Kahiyang Ayu menghadiri kegiatan lomba membatik an
NewsKAMAK Desak Kejaksaan Usut Tuntas Kebocoran PAD Deli Serdang, Kepala Bapenda dan 20 Perusahaan Diduga Terlibat Permainan Pajak
kotaDPP KAMUS Sesalkan Tayangan &ldquoXpose Uncensored&rdquo yang Dinilai Berpotensi Cemarkan Citra Pesantren
kotasumut24.co Padangsidimpuan, Media bukan hanya alat penyampai berita, tapi juga sahabat sejati bagi dunia pendidikan. Inilah gagasan besar y
Newssumut24.co Padangsidimpuan, Di era serba digital ini, dunia pendidikan tak bisa lagi menutup mata terhadap derasnya arus teknologi dan info
Newssumut24.co Padangsidimpuan, Menulis adalah cara paling elegan untuk berpikir kritis, begitu pesan Mohot Lubis, Wakil Ketua Persatuan Wart
Newssumut24.co ASAHAN, Pemerintah Kabupaten (Pemkab) Asahan melalui Dinas Koperasi, Perdagangan, dan Perindustrian menyalurkan bantuan sarana d
NewsDalam Kasus Korupsi Aset PTPN I, Bakal Ada Tersangka Oknum Anggota DPR RI
kotasumut24.co TANJUNGBALAI, Wali Kota Tanjungbalai, Mahyaruddin Salim melepas keberangkatan sebanyak 5 orang atlet untuk mengikuti pertandinga
News